프로젝트명: 선샤이하우스
진행년도 : 2021
카테고리: 브랜드 디렉터 김한정 실장님의 쉼을 위한집
콜라보레이션: 60세컨즈 김한정
식스티세컨즈 라운지 공간작업에서 인연을 이어온 한정 실장님을 위한 작업.
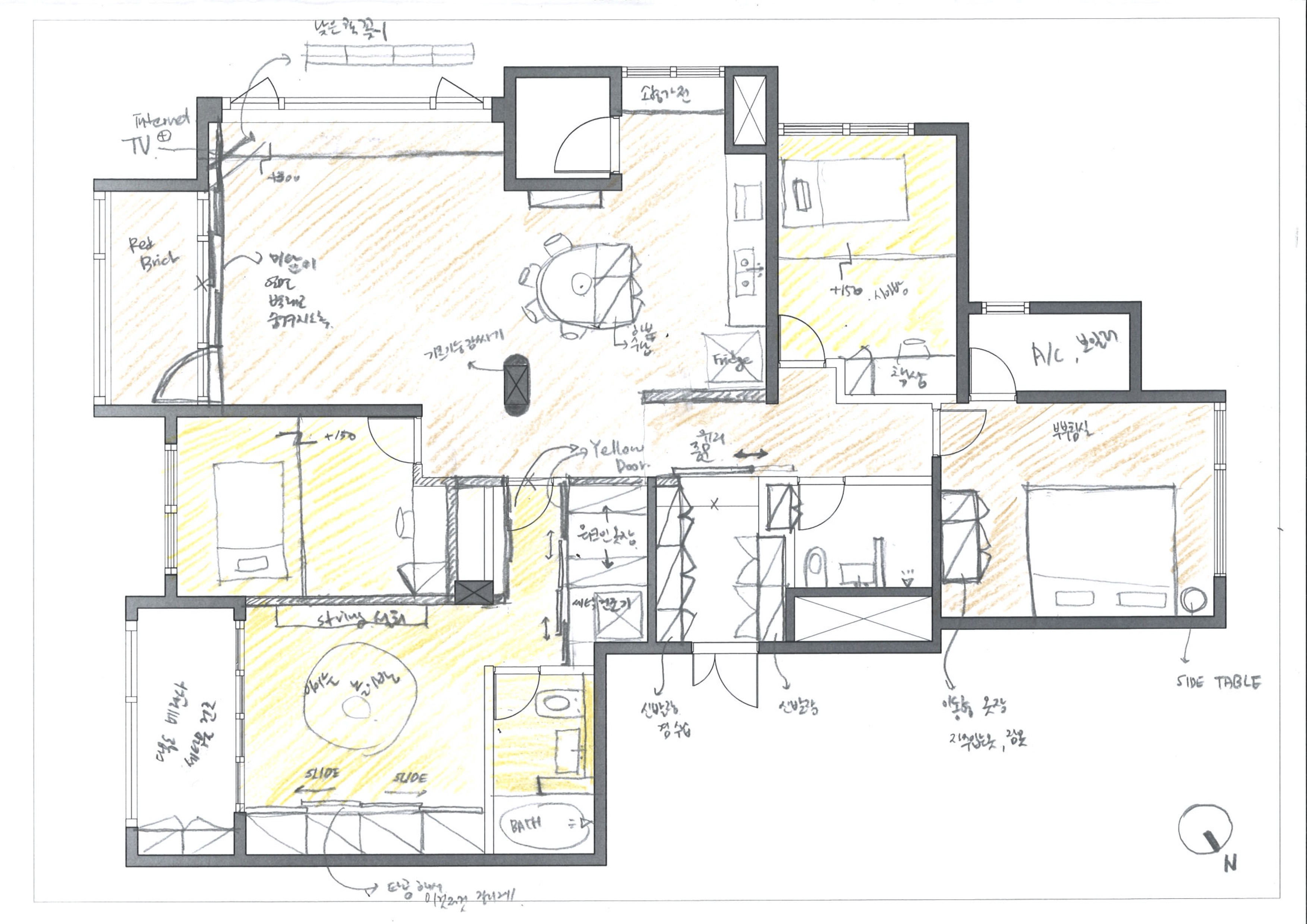
실장님의 소중한 두딸의 별명에서 영감을 얻어 지어진 션샤이하우스라는 이름 그대로 햇살이 가득 들어오는 거실공간이 매력적이다. 1층이라 느낄수있는 창밖의 자연이 마치 아파트가 아닌 주택에 사는듯한 기분을 전해준다. 다양한 색과 소재가 쓰였지만 매스로 읽힐 수 있도록 디테일을 정리했다.
두가지의 대비되는 톤의 공간으로 집 전체적으로 티크원목마루, 붉은빛 라왕 합판 가구와 검은 기둥이 묵직하게 공간을 잡아주고 아이들 공간은 메이플 수종의 마루와 자작나무를 사용한 가구, 기분좋은 노란색을 활용해 밝고 발랄한 색감으로 채웠다.
실장님의 소중한 두딸의 별명에서 영감을 얻어 지어진 션샤이하우스라는 이름 그대로 햇살이 가득 들어오는 거실공간이 매력적이다. 1층이라 느낄수있는 창밖의 자연이 마치 아파트가 아닌 주택에 사는듯한 기분을 전해준다. 다양한 색과 소재가 쓰였지만 매스로 읽힐 수 있도록 디테일을 정리했다.
두가지의 대비되는 톤의 공간으로 집 전체적으로 티크원목마루, 붉은빛 라왕 합판 가구와 검은 기둥이 묵직하게 공간을 잡아주고 아이들 공간은 메이플 수종의 마루와 자작나무를 사용한 가구, 기분좋은 노란색을 활용해 밝고 발랄한 색감으로 채웠다.